令和08年5月18日 09時58分 更新
次回更新予定日:令和8年5月19日
JR山手線 駒込駅の 売買物件詳細情報
◆かんたん1分!無料希望条件登録メールで物件情報リクエスト◆
ご希望の物件がございましたら、お電話でもお気軽にお問い合わせください。
03-6379-1915
HP公開数
105件
登録物件数
3970件
05/18 株式会社気になる家 物件更新情報!
トップページへ
お問い合わせ
物件番号
Bm4609
物件名
デュオ駒込古河庭園209号
価格
8,290万円
交通
JR山手線 駒込駅 徒歩9分
南北線 西ヶ原駅 徒歩7分
京浜東北線 上中里駅 徒歩9分
所在地
北区西ケ原1丁目
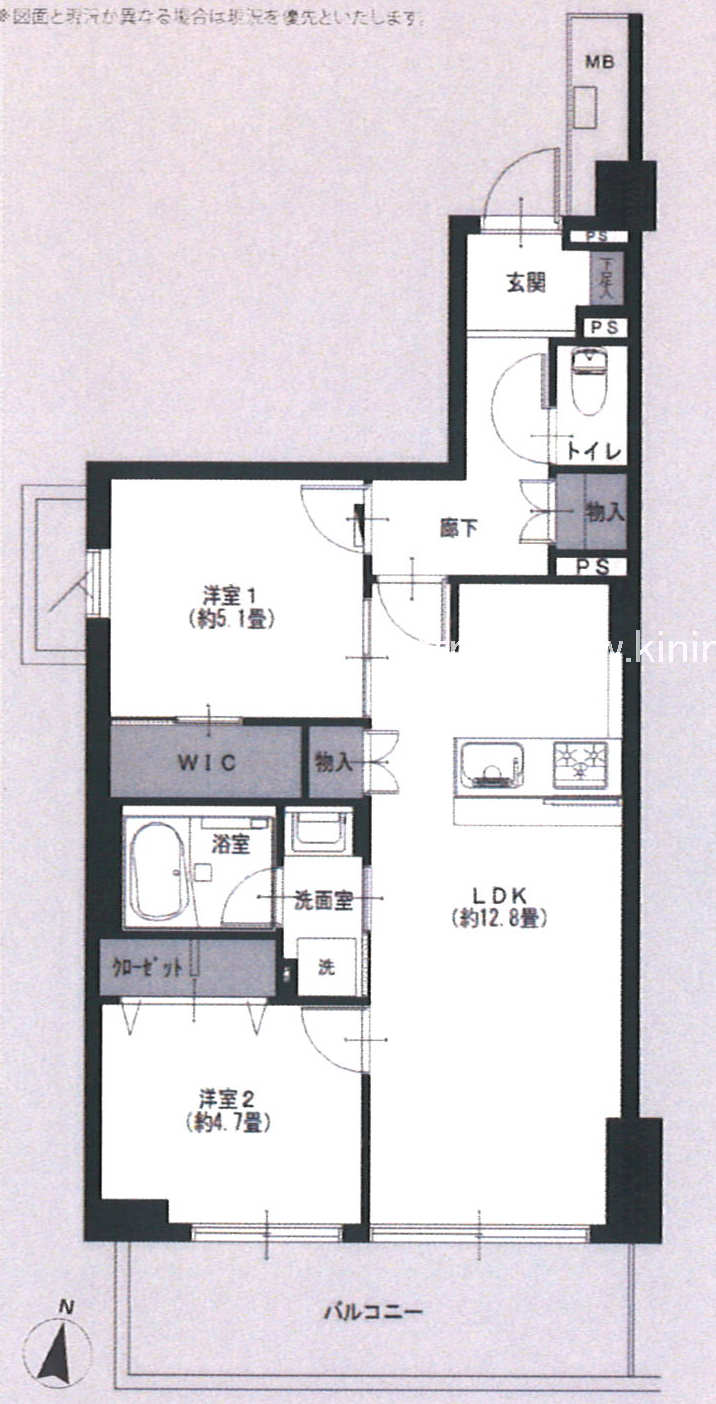
専有面積
54.66m
2
( 16.53坪 )
間取
2LDK
総戸数
76戸
階/階建
2階/地上6階 地下1階建
管理費
8,200円
修繕費
17,900円
駐車場
有
駐車場月額
19,000円
構造
鉄筋コンクリート造
用途地域
第一種中高層住居専用地域
バルコニ方向
南
取引態様
仲介
築年月
H14/06
引渡時期
相談
管理形態
全部委託
現況
空室
学区
バルコニ面積m
2
(坪)
8.9m
2
( 2.69坪 )
特色
ペット飼育可、リノベーション済、角部屋、オートロック、TVモニター付インターホン、浴室換気乾燥機付、床暖房、防犯カメラ、宅配ボックス、ウォークインクローゼット、システムキッチン、フローリング、アフターサービス保証付、エレベーター
Webコメント
詳細
ローンを組むにあたり、月々の返済額をシミュレーションします。
物件価格
8,290 万円
頭金
万円
内ボーナス
万円
金利
%
借入期間
年
※「元利均等返済」で算出しています。
※ 金利は変動金利を採用しています。
※ シミュレーションでの結果は、あくまでも目安で、概算になります。
実際にローン契約をする際は、詳細等は当社にご確認ください。
※ 実際のローン契約時には諸費用・税金(手数料や印紙税、保証料など)が
別途かかりますので、契約の際にご確認ください。
月々の返済額
掲載されている物件データが現況と異なる場合は現況を優先します。
■関連の沿線・駅名から検索■
物件一覧
--
JR山手線 駒込駅
--
間取一覧
--
写真一覧
物件一覧
--
南北線 西ヶ原駅
--
間取一覧
--
写真一覧
■カテゴリから検索■
ペット飼育可
|
角部屋マンション
|
リフォーム済マンション
|
中古マンション